各单位、全体师生员工:
为进一步优化校园环境,满足师生员工进行体育锻炼和开展体育活动的需求,经研究决定,对西区城市林业示范基地部分道路进行慢行系统升级改造。为确保工程顺利实施,现将有关事项通知如下:
一、封闭范围与时间
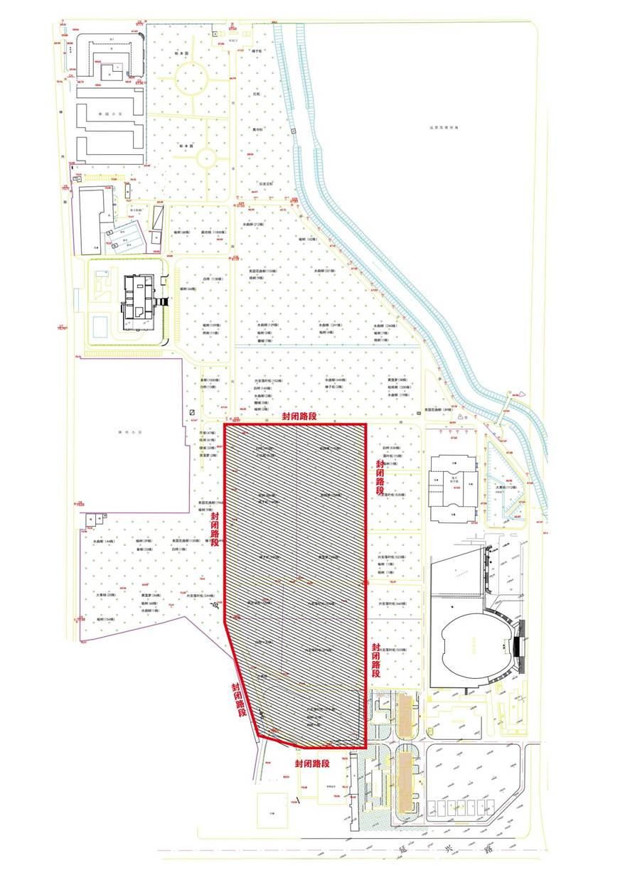
1.封闭范围:兴安路、凉水路与场馆中心后侧道路合围区域(见附图)。
2.封闭时间:7月20日6:00至8月25日24:00。
二、车辆绕行方案
1.主校区至兴安门路段,请从马家沟河旁道路、兴安路通行。
2.主校区至林科门路段,请从马家沟河旁道路、工科中心旁道路通行。
三、其他事项
1.为确保施工安全,禁止无关人员及车辆进入施工区域,严禁翻越围挡或靠近作业机械。
2.施工期间如有疑问,请与校园建设处或保卫处联系,联系人:贾洪科,13384666658 ; 梁岭滨,13936571585。
感谢全体师生员工的理解与支持!
附图:封闭区域见下图
